SL Series
Semi-automatische laadunit, met geïntegreerd CNC-systeem voor efficiënte productie
Beschikbaar formaat: 3015/4020
De SL-serie combineert laden en lossen, automatische materiaaltoevoer, CNC-snijden en materiaalhandling in één slim systeem. Hierdoor ontstaat een semi-geautomatiseerde workflow van programmeren tot snijden, wat zorgt voor hogere productiviteit, minder arbeidskosten en lagere operationele kosten, met behoud van eenvoudige en intuïtieve bediening.

Hoofd componenten
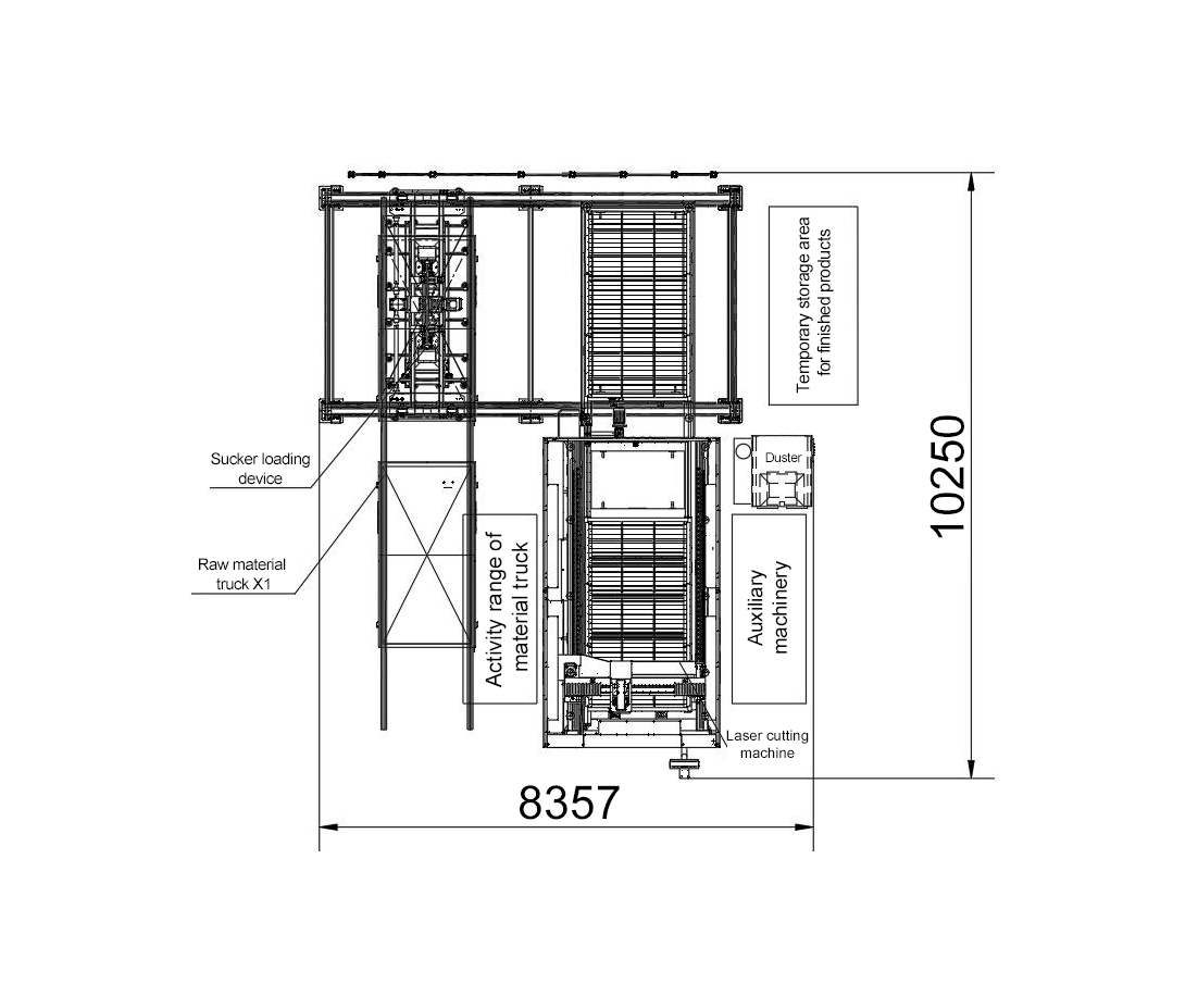
De enkelvoudige aanvoerunit bestaat uit een ruw materiaal wagen, een portaalframe, brug, een toevoer mechanisme, een sorteersysteem en een centrale besturing. Samen vormen zij een compact en efficiënt systeem voor betrouwbare en geautomatiseerde materiaaltoevoer.

Syteem kenmerken
Het systeem verzorgt het volledig automatisch laden van plaatmateriaal tot een maximale dikte van 40 mm. Het vacuümlaadsysteem is gekoppeld aan het productiesysteem voor taakuitvoering en -beheer. De laserautomatiseringsoplossing automatiseert het volledige traject van order tot bewerking, inclusief planning, materiaalverplaatsing en het snijproces.

Portaalframe
Het portaalframe is volledig opgebouwd uit gelaste profielen en ondergaat een zorgvuldig productieproces: lassen, voorbewerking, spanningsarm vibreren en precisiebewerking. Dit verwijdert interne spanningen en garandeert een uitzonderlijk stabiel en vormvast frame, essentieel voor nauwkeurig en betrouwbaar snijden.
De brugbalk is voorzien van een nauwkeurig bewerkte vlakke geleiding, waarop de dwarsbalk soepel en uiterst precies over het portaal beweegt. Dit zorgt voor hoge positioneernauwkeurigheid, constante kwaliteit en een lange levensduur.

Brug
De brug bestaat uit een robuust trussframe, een transmissiemechanisme, geleidingen en hoogwaardige lagers. Twee krachtige servomotoren zorgen voor nauwkeurige bewegingen: één voor het voor- en achterwaarts bewegen van de dwarsbalk en één voor het op- en neer bewegen van het materiaalplateau.
De truss beweegt horizontaal over het portaalframe via cam-lagers, wat resulteert in een stabiele, soepele en uiterst precieze handling van het materiaal.

Toevoer mechanisme
Het aanvoersysteem bestaat uit een gelast hoofdframe met geleidings- en aandrijfsystemen en vacuümzuignappen. Elke zuignap wordt individueel aangestuurd via magneetventielen en past zich automatisch aan de afmetingen van de plaat aan, voor snel en nauwkeurig oppakken.
Dankzij slagbegrenzers en anti-botsvoorzieningen verloopt het heffen veilig en betrouwbaar, zelfs bij hoge cyclustijden.

Ruw materiaal wagen
Het systeem is uitgerust met een 4-tons ruw materiaal wagen die zelfstandig over rails beweegt en zo het automatisch beladen van materiaal verzorgt. In de uitvoering als ruw materiaal wagen vervangt deze het traditionele magazijn en zorgt hij voor een kostenefficiënte, automatische toevoer naar de productielijn. Wanneer hij wordt ingezet als sorteerwagen, verzamelt hij zowel werkstukken als restmateriaal centraal, waardoor de productieafdeling het sorteerproces en de enkelstuksafvoer flexibel en efficiënt kan organiseren.
| Model | SL-3015 | SL-4020 |
|---|---|---|
| Max. laadafmetingen | 3000 mm x 1500 mmx 40 mm | 4000 mm x 2000 mmx 40 mm |
| Belaad snelheid | 60 m/min | 60 m/min |
| Hefsnelheid | 8 m/min | 8 m/min |
| Maximale gewicht op shuttles | 4 Ton | 4 Ton |
| Snelheid van de shuttles | 20 m/min | 20 m/min |
| Maximale hijsgewicht | 1400kg | 2500kg |
Gebruikte componenten kunnen afwijken, afhankelijk van het exacte model en de beschikbaarheid van de componenten, alternatieve zijn van gelijke kwaliteit.